Listed by Jake Steven, ALC and John Rupp, ALC of Reece Nichols South Central Kansas (316-260-5900)
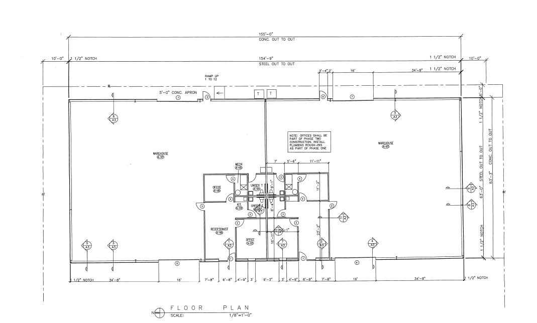
    New construction warehouse facility available for sale or lease. Lease rate is $10.00/SF Industrial Gross. Located on South Washington near Lincoln, the property offers quick access to major arterial roads and Downtown Wichita. The steel-constructed industrial building totals ±9,800 SF on a ±0.51-acre site and is divisible into two ±4,900 SF suites. Features include 19' clear height, four drive-thru overhead doors (two 16' x 14' and two 16' x 16'), 3-phase power, and 11 on-site parking spaces. Zoned General Commercial and built in 2023, this property provides excellent visibility, functionality, and flexibility for a wide range of industrial and commercial users.

    Listing Tools

    Property Details of 1302 S Washington

    Property Details

    Exterior Features

    Community

    Other Details

    Map Location

     Listings courtesy of South Central Kansas as distributed by MLS GRID. Based on information submitted to the MLS GRID as of March 15, 2026 10:21 AM EDT. All data is obtained from various sources and may not have been verified by broker or MLS GRID. Supplied Open House Information is subject to change without notice. All information should be independently reviewed and verified for accuracy. Properties may or may not be listed by the office/agent presenting the information. IDX information is provided exclusively for consumers’ personal noncommercial use and may not be used for any purpose other than to identify prospective properties consumers may be interested in purchasing. The data is deemed reliable but is not guaranteed by MLS GRID. The use of the MLS GRID Data may be subject to an end user license agreement.

    Hi there! How can we help you?

    Contact us using the form below or give us a call.

    Send Us A Message:

    I agree to receive marketing and customer service calls and text messages from Reece Nichols South Central Kansas. To opt out, you can reply 'stop' at any time or click the unsubscribe link in the emails. Consent is not a condition of purchase. Msg/data rates may apply. Msg frequency varies. Privacy Policy.

    Do not fill in this field:

    This site is protected by reCAPTCHA and the Google Privacy Policy and Terms of Service apply.