Listed by Keith Zwickl Jr of ReeceNichols South Central Kansas (620-931-0233)
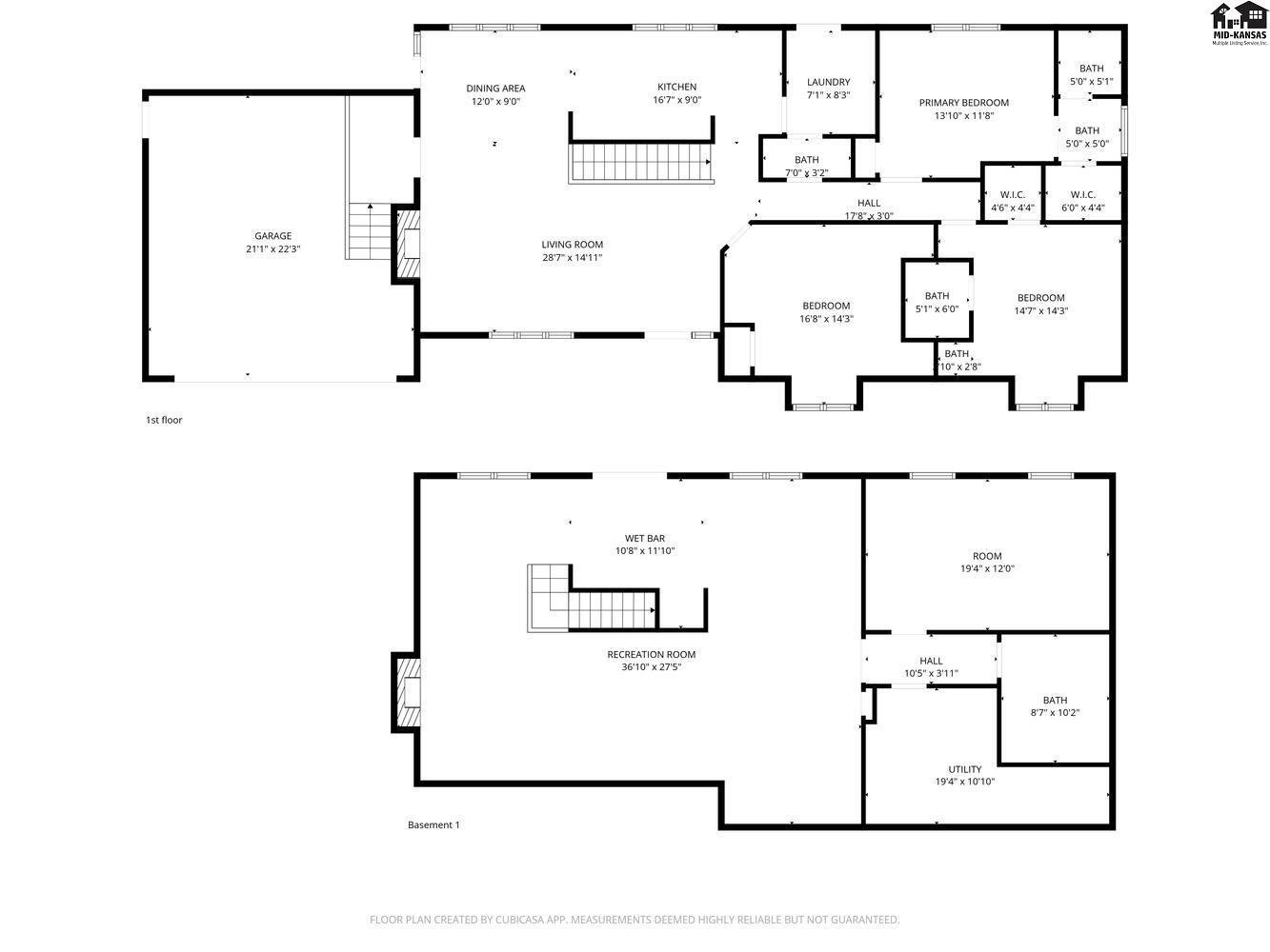
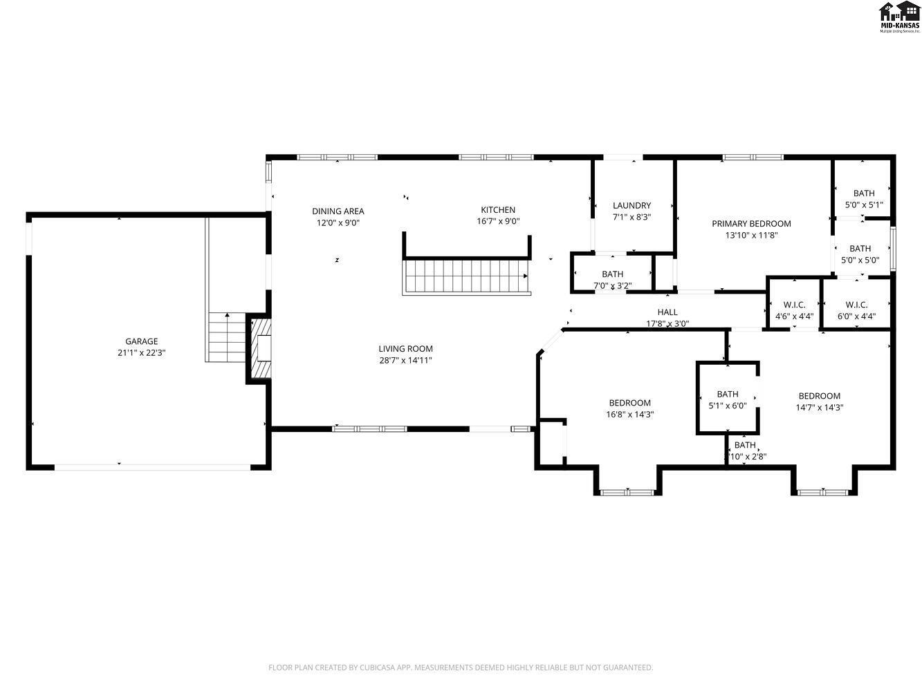
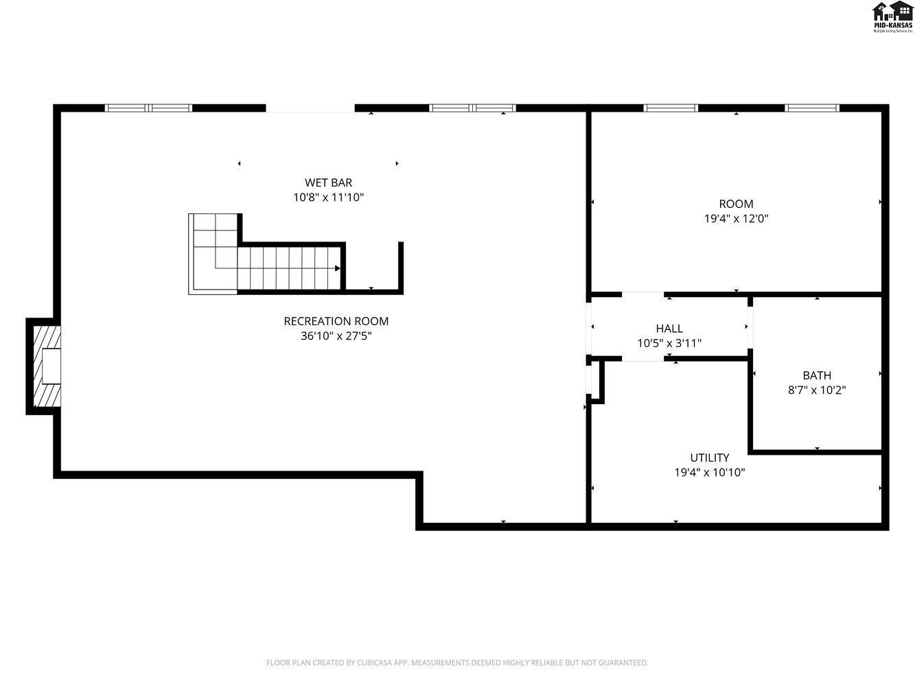
    Welcome to peaceful country living on 13.6 acres! This spacious, ranch style home offers the perfect blend of comfort, functionality and wide open, Kansas views. With 4 beds, 3.5 baths, this home features an open floor plan on both the main level and in the fully finished, walk-out basement, ideal for every day living and entertaining. The main floor showcases new flooring in the living, kitchen and dining area along with fresh paint throughout the entire home giving a bright, updated feel. Downstairs, the walk out basement provides additional open living space and easy access to the outdoors. Stepping outside, enjoy everything this property has to offer. A 30X50 shop with a lean-to perfect for equipment, hobbies or extra storage. Plus acreage well suited for a hobby farm. Lastly, a charming pond to add to the peaceful setting making it easy to unwind!

    Listing Tools

    Property Details of 5804 W 50th Avenue

    Property Details

    Exterior Features

    Utilities and Appliances

    Community

    Other Details

    Map Location

     "Based on information submitted to Mid-Kansas MLS as of March 15, 2026 9:47 AM EDT . All data is deemed reliable but is not guaranteed accurate by the MLS. All information should be independently reviewed and verified for accuracy. IDX information is provided exclusively for consumers’ personal, noncommercial use and may not be used for any purpose other than to identify prospective properties consumers may be interested in purchasing."

     
     

     

     

    Hi there! How can we help you?

    Contact us using the form below or give us a call.

    Send Us A Message:

    I agree to receive marketing and customer service calls and text messages from Reece Nichols South Central Kansas. To opt out, you can reply 'stop' at any time or click the unsubscribe link in the emails. Consent is not a condition of purchase. Msg/data rates may apply. Msg frequency varies. Privacy Policy.

    Do not fill in this field:

    This site is protected by reCAPTCHA and the Google Privacy Policy and Terms of Service apply.