Listed by Season Wedman of Real Broker,LLC (855-450-0442)
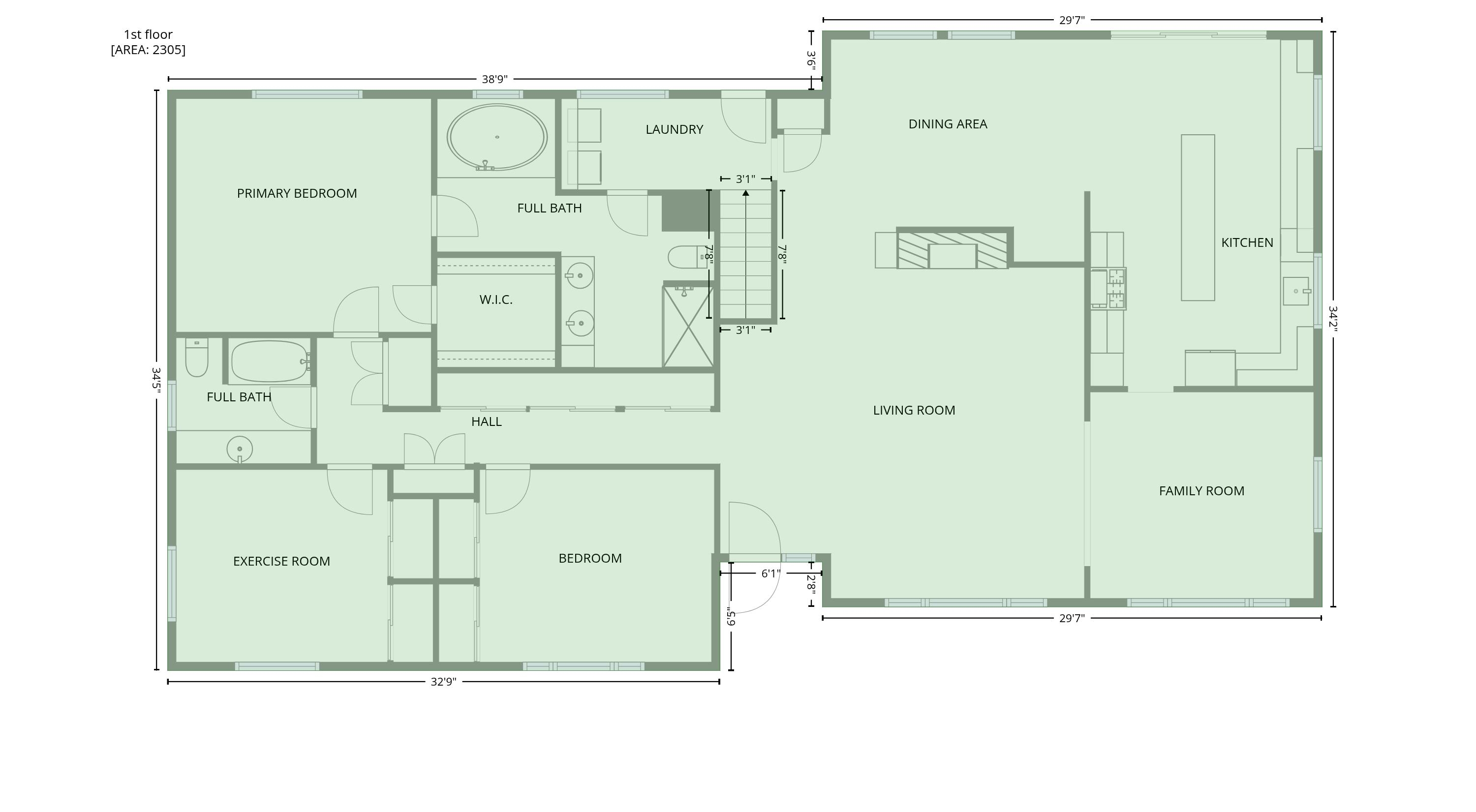
    *EXCEPTIONAL Forever-Home in the Heart of Anthony, Kansas* Welcome to a rare opportunity to own one of Anthony's truly special homes-originally intended to be the sellers' forever home, no expense was spared in the quality, care, and thoughtfulness put into every update. This beautifully remodeled residence combines small-town charm with luxury features typically found only in high-end custom builds. *PRIME LOCATION IN A CLASSIC AMERICAN SMALL TOWN* Nestled in the welcoming community of Anthony, KS-known for its excellent school system, tight-knit community, and the scenic Anthony Lake-this home offers the kind of lifestyle many people dream about. Whether you're a local buyer or relocating from out of state, this town embodies everything great about small-town America: safe, friendly, self-sustaining, and full of community pride. *DREAM KITCHEN & MAIN LEVEL LIVING* The fully remodeled kitchen is a standout with gas stove, double ovens, built-in ice maker, wine fridge, and a premium water filtration system. An eating bar flows seamlessly into the formal dining room, library, and living area-all wrapped around a gorgeous brick fireplace that anchors the main level. *LUXURIOUS MASTER SUITE* The primary suite is designed for comfort and convenience, featuring a phenomenal, spa-like bathroom and laundry located just steps away. A private exterior door opens to its own deck and hot tub-an ideal retreat for morning coffee or peaceful evenings. *ENDLESS SPACE & STORAGE* Storage is everywhere-closets, built-ins, and thoughtfully designed rooms throughout the home. Two non-conforming basement rooms offer flexible space for office, craft room, guest area, play space, or hobbies, plus a cement safe room currently outfitted with shelving. The expansive recreation area downstairs provides room for games, entertaining, workshops, or anything your lifestyle demands. *OUTDOOR OASIS* Step outside to a backyard built for entertainment and relaxation. Enjoy the 20x40 in-ground pool with step entry, hot tub, covered patio, and a built-in gas grill that makes hosting effortless. Whether it's summer gatherings or quiet evenings, this outdoor space is a true haven. *GARAGE & HEATED SHOP* In addition to the attached two-car garage, the property features a massive heated shop, perfect for year-round projects, storage, vehicles, or the ultimate man cave. *THE BEST OF ANTHONY KANSAS LIVING* Anthony is a self-sustaining community where you can enjoy peaceful country living without giving up modern conveniences. Need a trip to the “big city”? Wichita is an easy, pleasant drive-but everything you need is right here at home: schools, shops, dining, recreation, and endless community spirit. ***Homes like this-and towns like Anthony-are rare. This property offers luxury, comfort, functionality, and the kind of lifestyle that makes people fall in love with Kansas.

    Listing Tools

    Property Details of 821 N Anthony Avenue

    Property Details

    Interior Features

    Exterior Features

    Utilities and Appliances

    Community

    Other Details

    Map Location

     Listings courtesy of South Central Kansas as distributed by MLS GRID. Based on information submitted to the MLS GRID as of January 19, 2026 6:51 AM EST. All data is obtained from various sources and may not have been verified by broker or MLS GRID. Supplied Open House Information is subject to change without notice. All information should be independently reviewed and verified for accuracy. Properties may or may not be listed by the office/agent presenting the information. IDX information is provided exclusively for consumers’ personal noncommercial use and may not be used for any purpose other than to identify prospective properties consumers may be interested in purchasing. The data is deemed reliable but is not guaranteed by MLS GRID. The use of the MLS GRID Data may be subject to an end user license agreement.

    Hi there! How can we help you?

    Contact us using the form below or give us a call.

    Send Us A Message:

    I agree to receive marketing and customer service calls and text messages from Reece Nichols South Central Kansas. To opt out, you can reply 'stop' at any time or click the unsubscribe link in the emails. Consent is not a condition of purchase. Msg/data rates may apply. Msg frequency varies. Privacy Policy.

    Do not fill in this field:

    This site is protected by reCAPTCHA and the Google Privacy Policy and Terms of Service apply.