Listed by Jake Steven, ALC and Reese Bayliff of Reece Nichols South Central Kansas (316-260-5900)
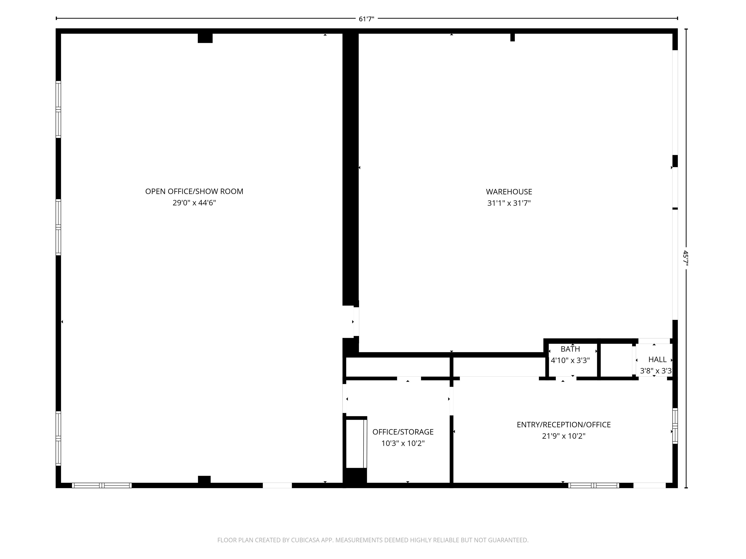
    FOR LEASE! Presenting a prime leasing opportunity at 4901 N Broadway, Wichita, Kansas, this property has exceptional convenience with easy access to highways and prominent visibility along N Broadway. Offering a lease rate of $2,500 per month (Industrial Gross), this space comprises a 2,976 +/- SF building on a 29,620 +/- SF (.68 Acres) lot. The building features a 32'x31' warehouse equipped with gas heating, 12' ceiling height, and (2) 10x10 overhead doors, constructed in 1977. Additionally, the property includes a generously-sized office/conference room, a welcoming reception area, and a single bathroom. Providing further versatility, there are also two outdoor fenced storage areas available. Ideal for businesses in need of flexible warehouse, office, and outdoor storage space, this location stands out for its accessibility and visibility along N Broadway. Don't miss out on this opportunity - inquire now for leasing details!

    Listing Tools

    Property Details of 4901 N Broadway Avenue

    Property Details

    Exterior Features

    Community

    Other Details

    Map Location

     Listings courtesy of South Central Kansas as distributed by MLS GRID. Based on information submitted to the MLS GRID as of November 15, 2025 4:21 AM EST. All data is obtained from various sources and may not have been verified by broker or MLS GRID. Supplied Open House Information is subject to change without notice. All information should be independently reviewed and verified for accuracy. Properties may or may not be listed by the office/agent presenting the information. IDX information is provided exclusively for consumers’ personal noncommercial use and may not be used for any purpose other than to identify prospective properties consumers may be interested in purchasing. The data is deemed reliable but is not guaranteed by MLS GRID. The use of the MLS GRID Data may be subject to an end user license agreement.

    Hi there! How can we help you?

    Contact us using the form below or give us a call.

    Send Us A Message:

    I agree to receive marketing and customer service calls and text messages from Reece Nichols South Central Kansas. To opt out, you can reply 'stop' at any time or click the unsubscribe link in the emails. Consent is not a condition of purchase. Msg/data rates may apply. Msg frequency varies. Privacy Policy.

    Do not fill in this field:

    This site is protected by reCAPTCHA and the Google Privacy Policy and Terms of Service apply.