Listed by Vickie Vargas-Jacobs of Coldwell Banker Plaza Real Estate (316-722-0030)
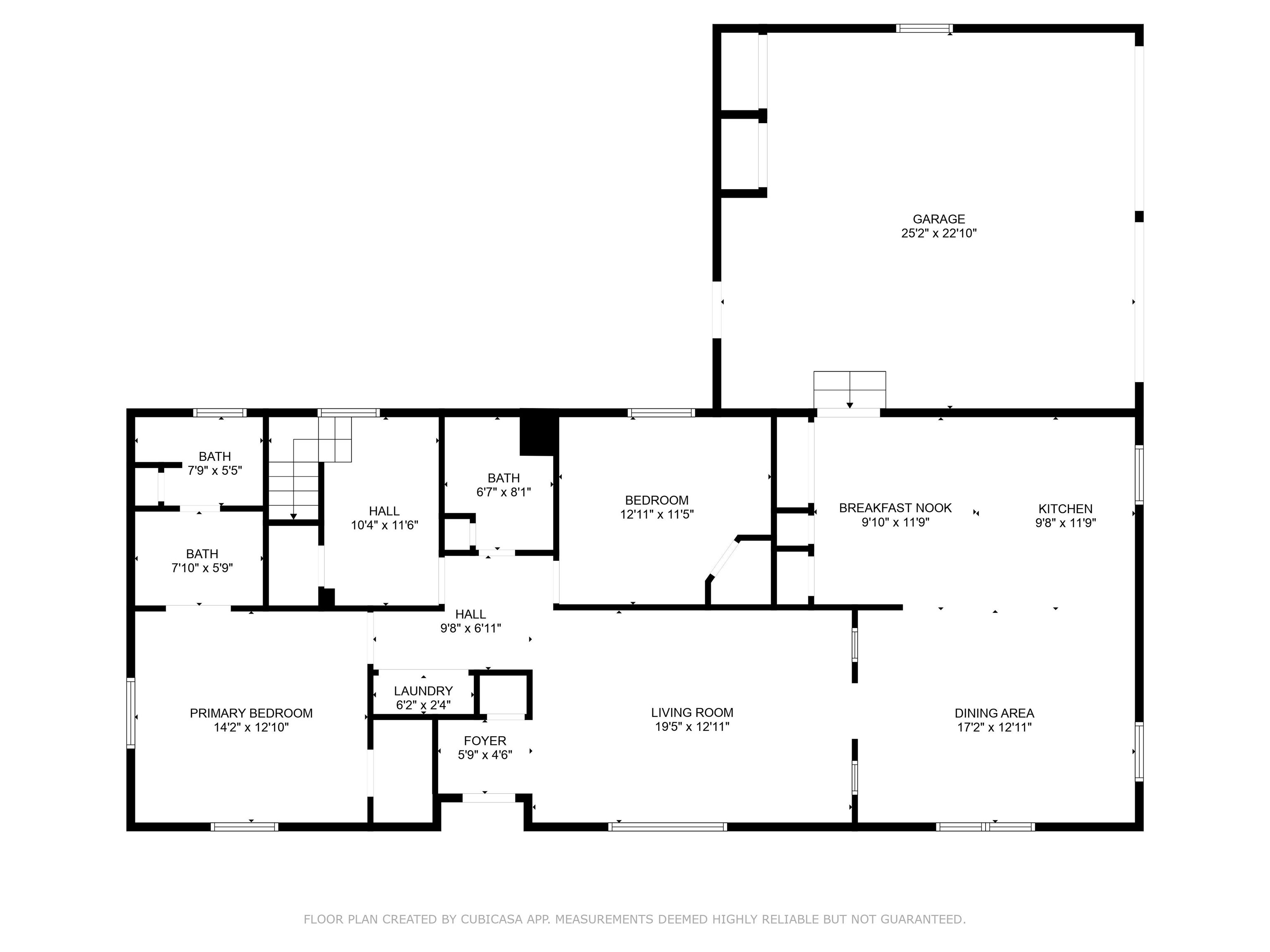
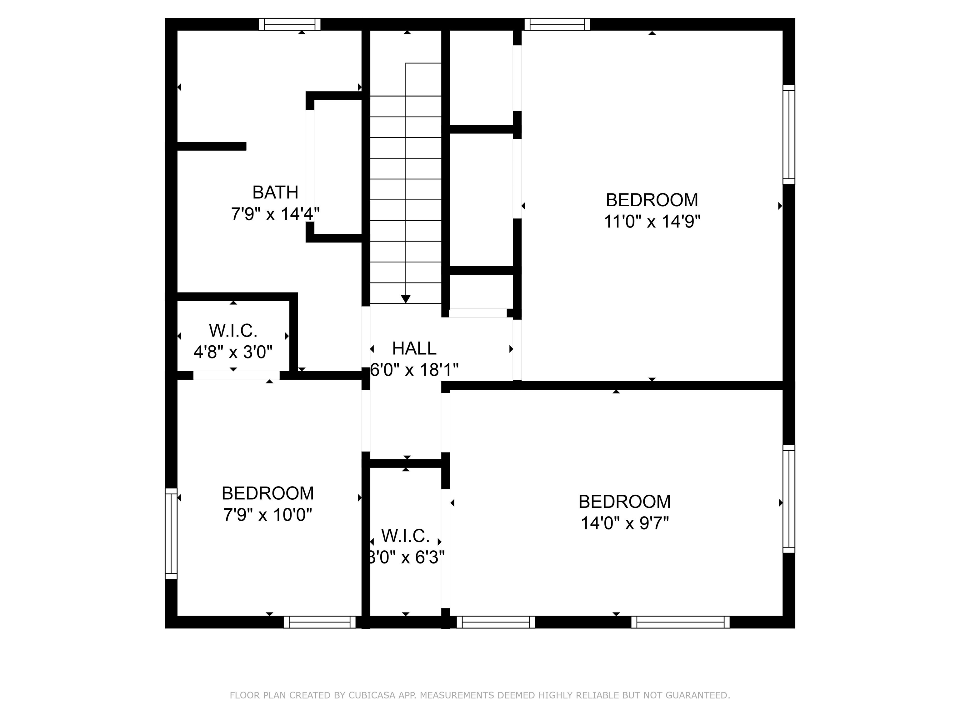
    Conventional or Cash only, this spacious mobile home was built in 1974 and had a ½ story added in 1984. 5 bedrooms, 3 baths, 2 car attached and a 1 car over sized detached all on a ½ acre. This home is a must see. Kitchen features quartz counter tops, deep sink, bar seating, pantry and enough room for a table, plus appliances remain. Formal dining area and large living room. Main floor master bedroom with master bath and main bath was recently remodeled by Bath Fitters. The upstairs has 3 bedrooms and a full bath w ith double sinks. The oversized attached 2 car garage 24x27 has 2 openers and keypad and offers good storage. The detached 1 car garage measures 24x26 has opener and key pad with access from the alley. The yard has an irrigation well and the owners loved their producing cherry tree. Front of home faces east, attached 2 car garage faces the north. ~~~ AGENTS READ THE PRIVATE REMARKS ~~~ BUYERS and AGENTS ALL INFORMATION DEEMED ACCURATE. PLEASE VERIFY INFORMATION TO SATISFY YOURSELF AS A BUYER AND/OR TRANSACTION BROKER OR A BUYER'S AGENT. Information such as room sizes, square feet, schools, lot lines etc. therefore if it is important to you, then investigate and inspect to satisfy yourself. **** The Sumner County casino offers to all Sumner County students who attend a Sumner Co. school at the start of the school year enrollment in grades K-12 a $100 educational reward card AND $1000 scholarship to all High School Graduates to be used towards their post-secondary education AND most teachers in Sumner County receive a $500 allowance to help defray the cost of classroom supplies, visit their website to learn more.****

    Listing Tools

    Property Details of 423 N Street Marys Street

    Property Details

    Interior Features

    Exterior Features

    Utilities and Appliances

    Community

    Other Details

    Map Location

     Listings courtesy of South Central Kansas as distributed by MLS GRID. Based on information submitted to the MLS GRID as of November 12, 2025 10:22 AM EST. All data is obtained from various sources and may not have been verified by broker or MLS GRID. Supplied Open House Information is subject to change without notice. All information should be independently reviewed and verified for accuracy. Properties may or may not be listed by the office/agent presenting the information. IDX information is provided exclusively for consumers’ personal noncommercial use and may not be used for any purpose other than to identify prospective properties consumers may be interested in purchasing. The data is deemed reliable but is not guaranteed by MLS GRID. The use of the MLS GRID Data may be subject to an end user license agreement.

    Hi there! How can we help you?

    Contact us using the form below or give us a call.

    Send Us A Message:

    I agree to receive marketing and customer service calls and text messages from Reece Nichols South Central Kansas. To opt out, you can reply 'stop' at any time or click the unsubscribe link in the emails. Consent is not a condition of purchase. Msg/data rates may apply. Msg frequency varies. Privacy Policy.

    Do not fill in this field:

    This site is protected by reCAPTCHA and the Google Privacy Policy and Terms of Service apply.