Listed by Nathan Tackett of Berkshire Hathaway PenFed Realty (316-788-4004)
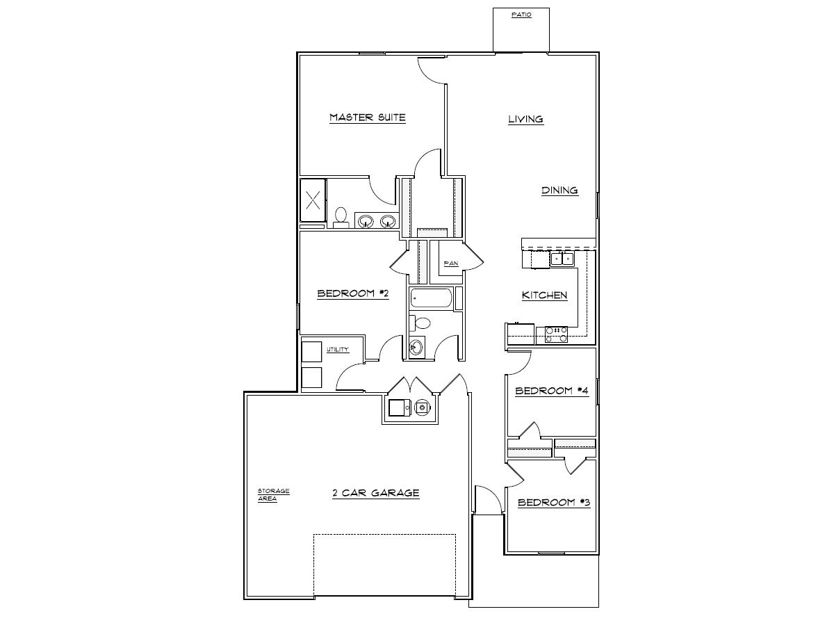
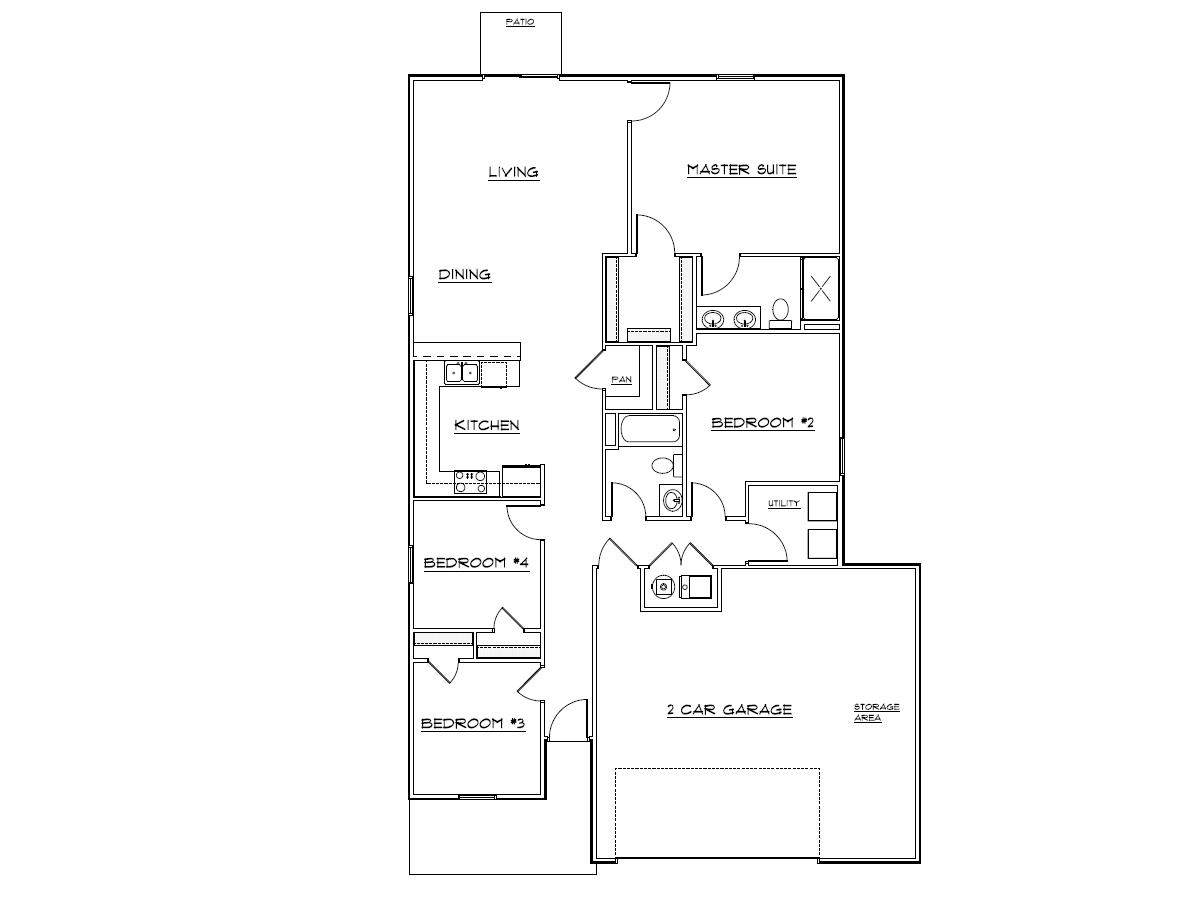
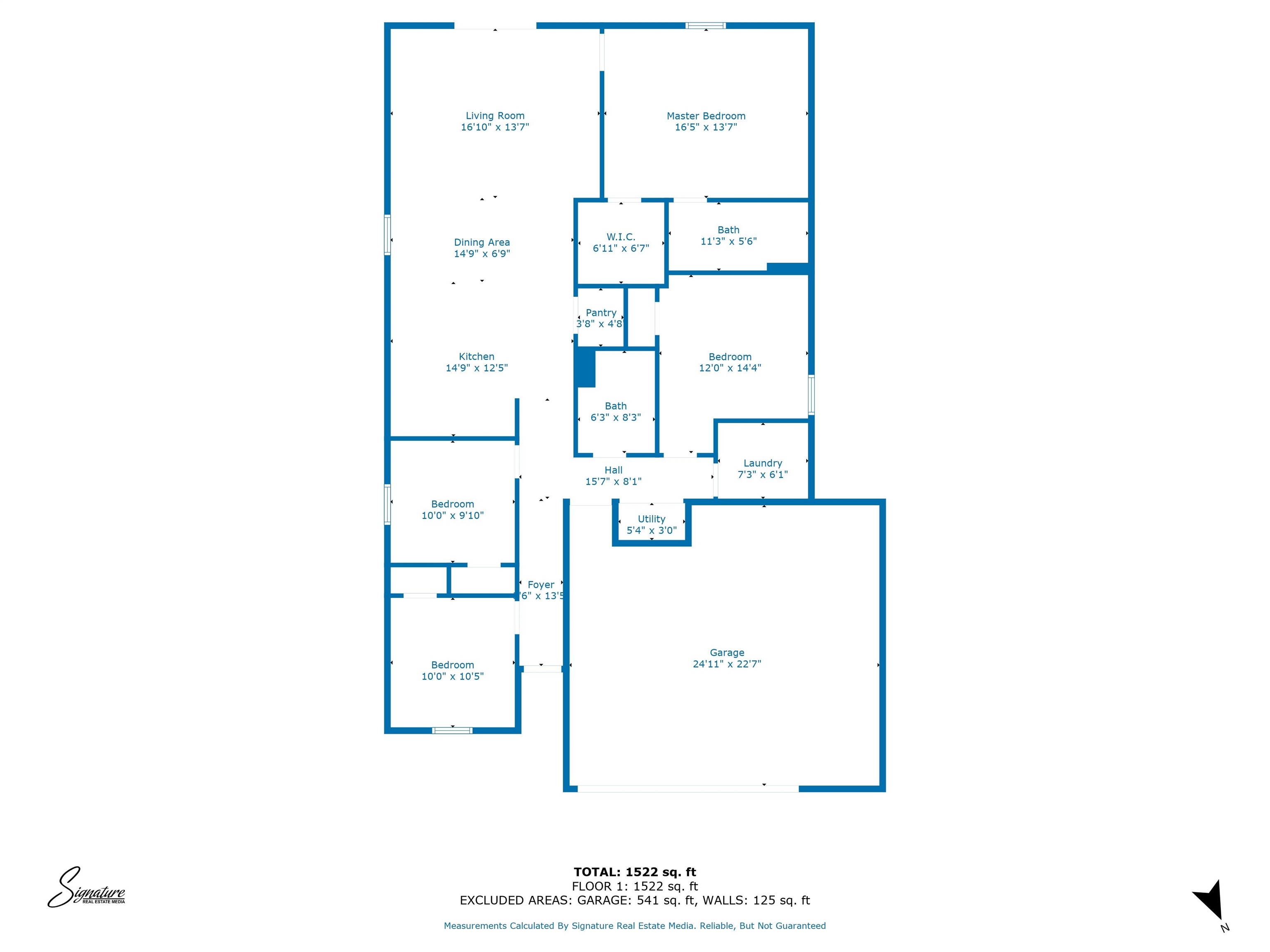
    Welcome to the GEORGETOWN floor plan by LIBERTY COMMUNITIES! This one-story home features 4 carpeted bedrooms, 2 bathrooms, kitchen features "Thaw" (medium grey) cabinets, granite counter tops and a walk-in pantry, LVP flooring, window blinds, a concrete patio, and a 2-car garage with a FEMA approved storm shelter. The following appliances are included: stove/oven, microwave, refrigerator, dishwasher, washer and dryer. Irrigation, sod, one tree and light landscaping are also included! *Home is under construction. Photo is a rendering of the home. Color of home will be Pewter Green with Alabaster trim. *Interior photos are from a previously built version of this plan. *Garage will be standard width and extra deep with storm shelter at the back.

    Listing Tools

    Property Details of 3570 E Hollandale Street

    Property Details

    Interior Features

    Exterior Features

    Utilities and Appliances

    Community

    Other Details

    Map Location

     Listings courtesy of South Central Kansas as distributed by MLS GRID. Based on information submitted to the MLS GRID as of November 9, 2025 11:21 AM EST. All data is obtained from various sources and may not have been verified by broker or MLS GRID. Supplied Open House Information is subject to change without notice. All information should be independently reviewed and verified for accuracy. Properties may or may not be listed by the office/agent presenting the information. IDX information is provided exclusively for consumers’ personal noncommercial use and may not be used for any purpose other than to identify prospective properties consumers may be interested in purchasing. The data is deemed reliable but is not guaranteed by MLS GRID. The use of the MLS GRID Data may be subject to an end user license agreement.

    Hi there! How can we help you?

    Contact us using the form below or give us a call.

    Send Us A Message:

    I agree to receive marketing and customer service calls and text messages from Reece Nichols South Central Kansas. To opt out, you can reply 'stop' at any time or click the unsubscribe link in the emails. Consent is not a condition of purchase. Msg/data rates may apply. Msg frequency varies. Privacy Policy.

    Do not fill in this field:

    This site is protected by reCAPTCHA and the Google Privacy Policy and Terms of Service apply.