Listed by Colton Bartlett of Berkshire Hathaway PenFed Realty (316-636-2323)
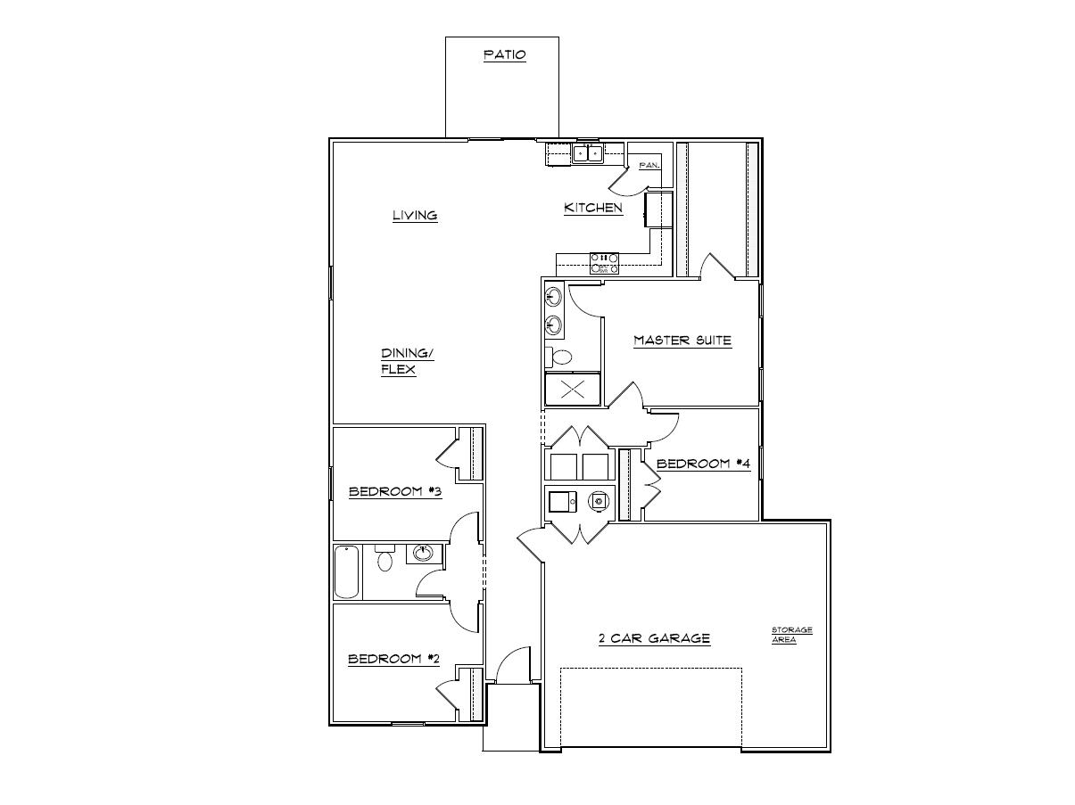
    ***Builder Credit up to $5,000 towards closing, one year HOA Dues, and HOA Initiation fee*** Park City Tax Incentive available through the city. Welcome to the Revere floor plan by Liberty Communities! This 1 story home features 4 carpeted bedrooms, 2 bathrooms, a kitchen with granite counter tops and one large pantry, LVP flooring, window blinds, a concrete patio, and an oversized 2-car garage with a FEMA approved storm shelter. Stove/oven, microwave, refrigerator, dishwasher, washer and dryer are included. Irrigation, sod, bushes and trees are also included to meet HOA requirements. This home will be turn-key and ready for you once construction is completed. Color of home will be Alabaster White with Tricon Black trim. Home is under construction. HOA mows and snow removal.

    Listing Tools

    Property Details of 3051 E Highridge Court

    Property Details

    Interior Features

    Exterior Features

    Community

    Other Details

    Map Location

     Listings courtesy of South Central Kansas as distributed by MLS GRID. Based on information submitted to the MLS GRID as of December 7, 2025 8:21 AM EST. All data is obtained from various sources and may not have been verified by broker or MLS GRID. Supplied Open House Information is subject to change without notice. All information should be independently reviewed and verified for accuracy. Properties may or may not be listed by the office/agent presenting the information. IDX information is provided exclusively for consumers’ personal noncommercial use and may not be used for any purpose other than to identify prospective properties consumers may be interested in purchasing. The data is deemed reliable but is not guaranteed by MLS GRID. The use of the MLS GRID Data may be subject to an end user license agreement.

    Hi there! How can we help you?

    Contact us using the form below or give us a call.

    Send Us A Message:

    I agree to receive marketing and customer service calls and text messages from Reece Nichols South Central Kansas. To opt out, you can reply 'stop' at any time or click the unsubscribe link in the emails. Consent is not a condition of purchase. Msg/data rates may apply. Msg frequency varies. Privacy Policy.

    Do not fill in this field:

    This site is protected by reCAPTCHA and the Google Privacy Policy and Terms of Service apply.